.png)
Longhorn Designs is thrilled to present "The Colorado," a home that channels the spirit of the American frontier with a level of refinement perfect for the modern Australian. At a spacious 400m2, this design is a celebration of rugged beauty and exceptional craftsmanship, built for those who seek both adventure and sophistication.
The exterior of "The Colorado" makes a commanding statement with its bold steel lines, rich timber textures, and a commanding façade with stone accents. It’s an unforgettable blend of natural elements and modern design, creating a home that feels both grounded in nature and forward-thinking in its aesthetic. This is a residence built for modern pioneers—clients who want a home that is both a sanctuary and a starting point for their next adventure.
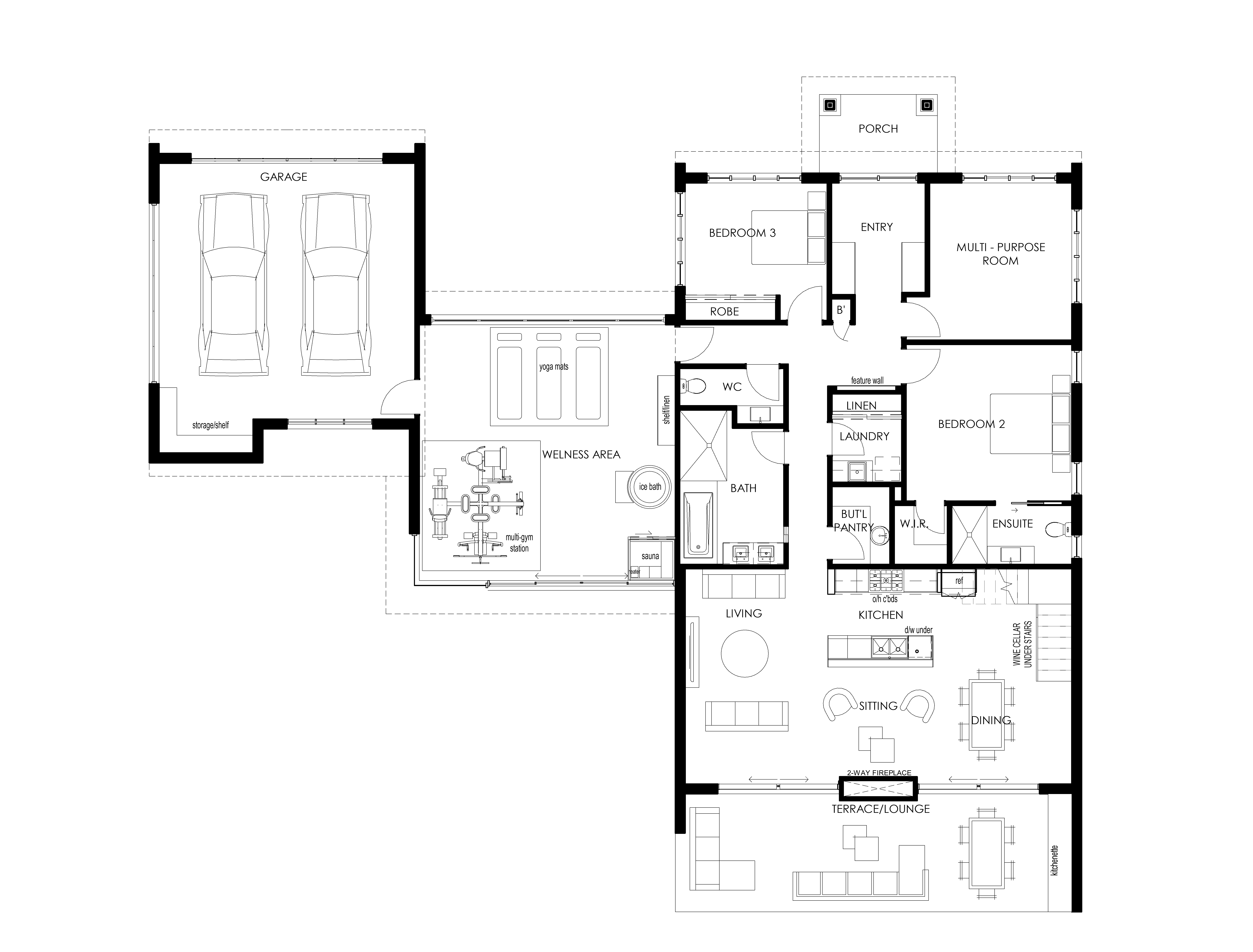
Inside, the home unfolds into a truly refined retreat. Grand proportions and soaring ceilings amplify the sense of space and light, while a chef’s kitchen and open-plan living areas invite seamless entertaining. With four luxurious bedrooms and three bathrooms, "The Colorado" provides ample room for family and guests, ensuring a private and comfortable experience for all. Every detail is meticulously planned to create a home that is as functional as it is beautiful, blending the rugged essence of the American frontier with the sophisticated comfort of a high-end retreat.