.png)
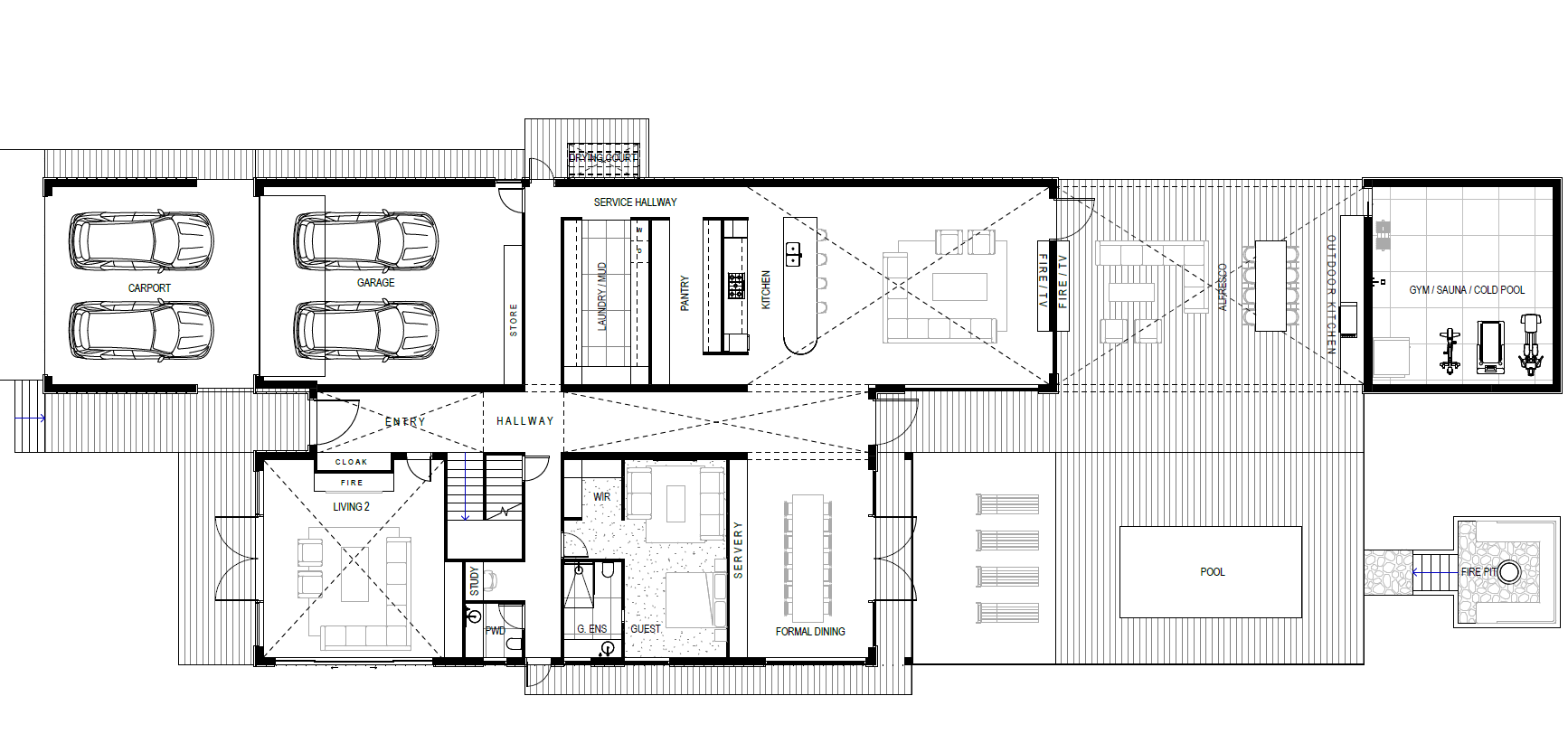
The Kentucky unfolds as a grand, light‑filled residence where comfort meets luxury on a massive scale. From the central entrance, the home immediately reveals its sense of arrival, providing framed views of the rear gardens and outdoor landscape. The ground level is designed for effortless hosting, with the living areas anchored by a striking double‑sided fireplace that extends the atmosphere seamlessly to the alfresco entertaining spaces. A separate formal dining room and private media zone at opposite ends of the house allow generous privacy for all residents and activities. Private guest suite downstairs accompanied by small study offer guests an experience they’ll always remember. While the kitchen is supported by a walk‑through butler’s pantry, service hallway, and oversized laundry and mudroom - all positioned to keep the home highly functional without compromising its clean, open aesthetic. Functionally, the home offers access to the outdoors from any location, and four‑car garage with integrated storage further enhances the estate‑level practicality of the design.
Entertaining continues outdoors, where large openings connect to an expansive alfresco kitchen and dining area, flowing directly onto the pool and a private wellness retreat comprising a gym, sauna, and cold plunge. Beyond the pool, a dedicated fire pit zone creates a layered outdoor experience ideal for evening gatherings and relaxed entertaining. Throughout the lower level, thoughtful zoning allows these social areas to remain distinct yet visually connected, reinforcing the home’s well-designed layout and its strong connection to the surrounding landscape.
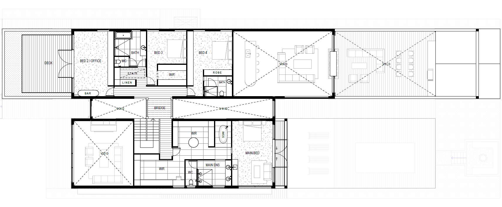
The upper level offers a quieter, more private retreat, accessed by a feature stair that leads to an elevated airbridge overlooking the double‑height voids below. This architectural moment fills the home with natural light while maintaining strong visual connection between levels. The master suite is a standout sanctuary, complete with separate his and hers walk‑in robes, a luxury ensuite with soaking tub, and a private lounge space. Two additional bedrooms provide flexible accommodation options, while a further bedroom or office opens onto a generous outdoor deck, creating an elevated escape with serene views. Together, both levels of The Kentucky deliver a sophisticated blend of grandeur, privacy, and flow - an unmistakably American‑inspired home designed for refined rural living or a dreamy coastal lifestyle.