.png)
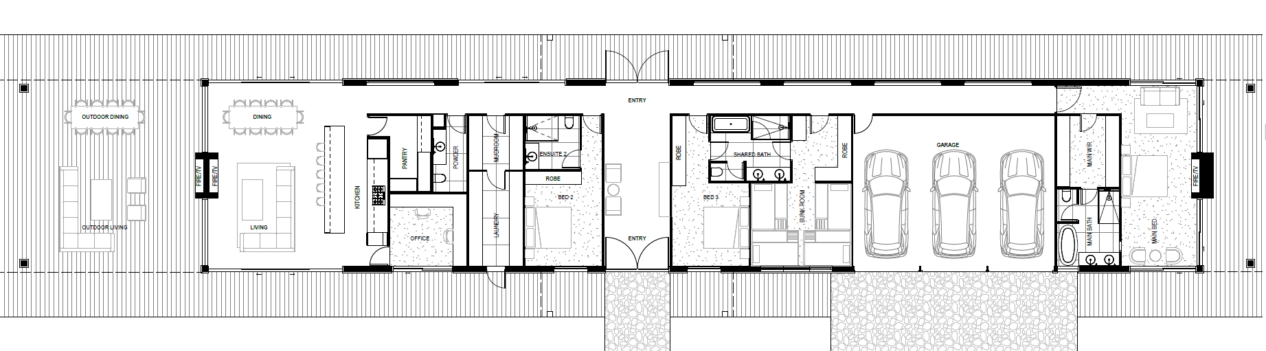
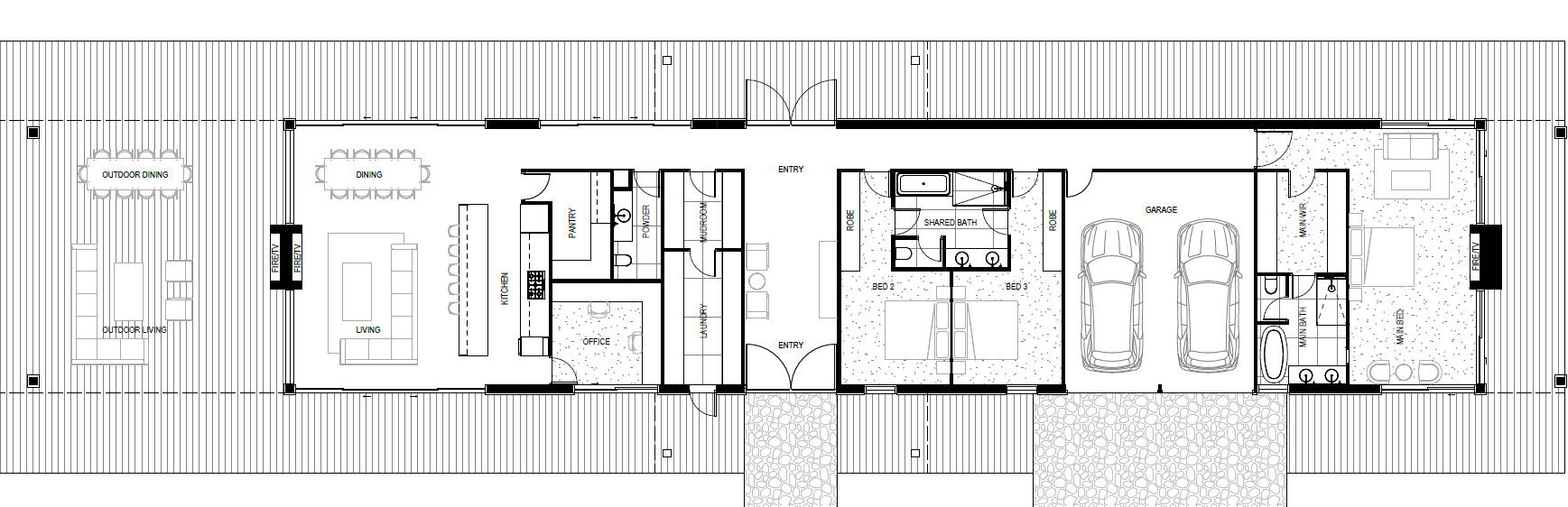
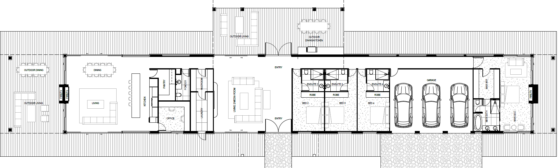
The Kansas is a powerful expression of American ranch-style architecture, designed on a grand scale to sit confidently within elevated landscapes and sloping sites. Available in 455, 510, 540 or 615m² configurations, this design offers exceptional flexibility, allowing clients to select a layout that best suits their lifestyle and block size. With its expansive footprint, central entry, and strong horizontal form, the home can stretch seamlessly across the land while embracing panoramic outlooks.
At the heart of the design is a central arrival zone, from which the home unfolds into purposeful, well-separated wings. Larger configurations introduce an enhanced sense of luxury with a private media room or additional open living space and generous bedroom separation for improved acoustic and visual privacy. If maximizing every space of the home is your goal, variations to include a kids bunk room for extended family fun or a great option for holiday renting. Each version of The Kansas includes a 2–3 car garage, reinforcing the home’s practical, rural-ready nature while maintaining a refined architectural presence.
Privacy and liveability are defining features throughout. The master suite is positioned separately in every design option, creating a secluded retreat that enhances the sense of scale and calm within the home. A walk-in mudroom and oversized pantry, both with direct outdoor access, support everyday functionality and seamless rural living. In the largest configurations, the home opens into expansive entertaining zones, with vast central living areas extending toward the outer wing — ideal for connecting to a future pool or outdoor leisure space. The result is a home that feels grounded and expansive, private yet open, and unmistakably American in both style and spirit.