.png)
The Illinois is a striking two-storey barndominium that captures the enduring spirit of American barn architecture, elevated through bold scale and contemporary design. At 490 m², this home presents a confident presence, defined by strong gabled rooflines, expansive glazing, and a balanced façade that reflects both rural charm and modern sophistication. Designed to embrace light, volume, and connection to its surroundings, The Illinois is ideally suited to wide rural blocks where architectural expression and open outlooks are paramount.
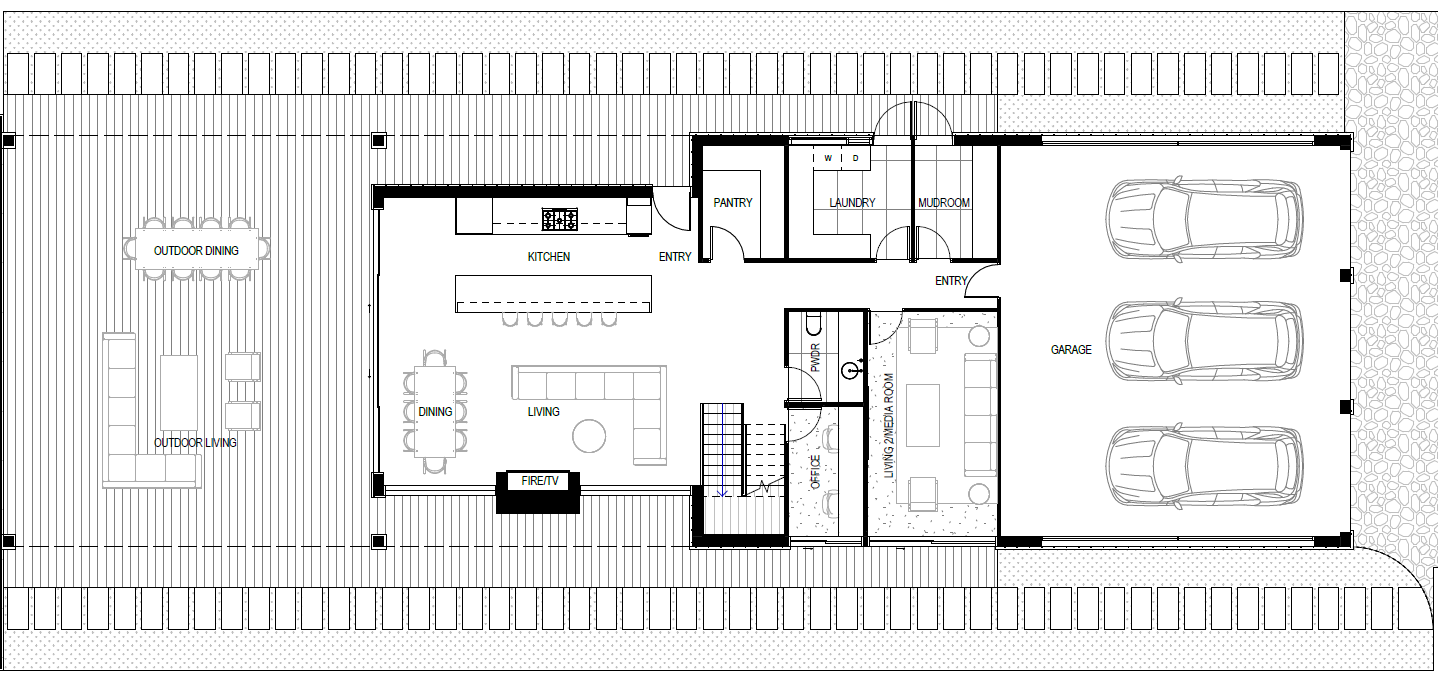
The ground floor is anchored by an expansive open-plan living zone, where the kitchen takes centre stage with an extensive entertainer’s island that invites gatherings both large and small. This space flows effortlessly into a breathtaking double-height alfresco, framed by decorative timber beams that enhance the barn aesthetic while creating a dramatic sense of scale. Open views in multiple directions blur the boundary between indoors and out, while full-height glazing to the rear draws natural light deep into the home. A separate media room offers a cosy retreat for movie nights, while a dedicated office provides a quiet, functional workspace removed from the main living areas. Completing the lower level is a generous three-car garage, offering both practicality and storage capacity.
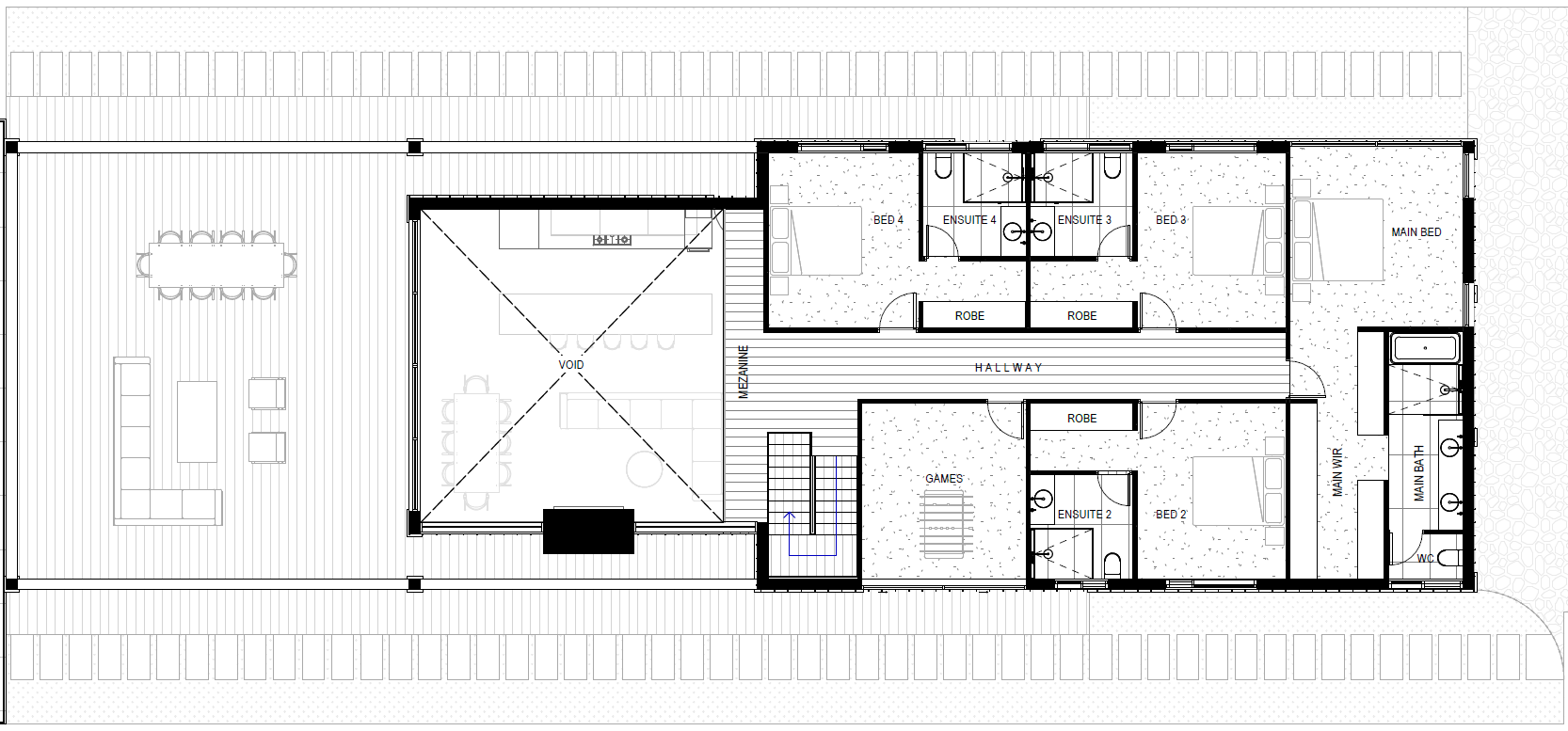
Upstairs, the home continues to impress with a thoughtful layout designed for family living and flexibility. Four spacious bedrooms are complemented by a versatile games room or multi-purpose retreat, ideal as a kids’ lounge, craft room, or study zone. A long hallway opens to a stunning mezzanine void, allowing the upper level to overlook the living space below and reinforcing the home’s sense of openness and architectural drama. The master suite is a true sanctuary, featuring an expansive walk-in robe that delivers both luxury and functionality. With soaring ceilings, layered spaces, and carefully considered sightlines, The Illinois offers a sophisticated interpretation of American barn living - bold, welcoming, and designed to be lived in.