
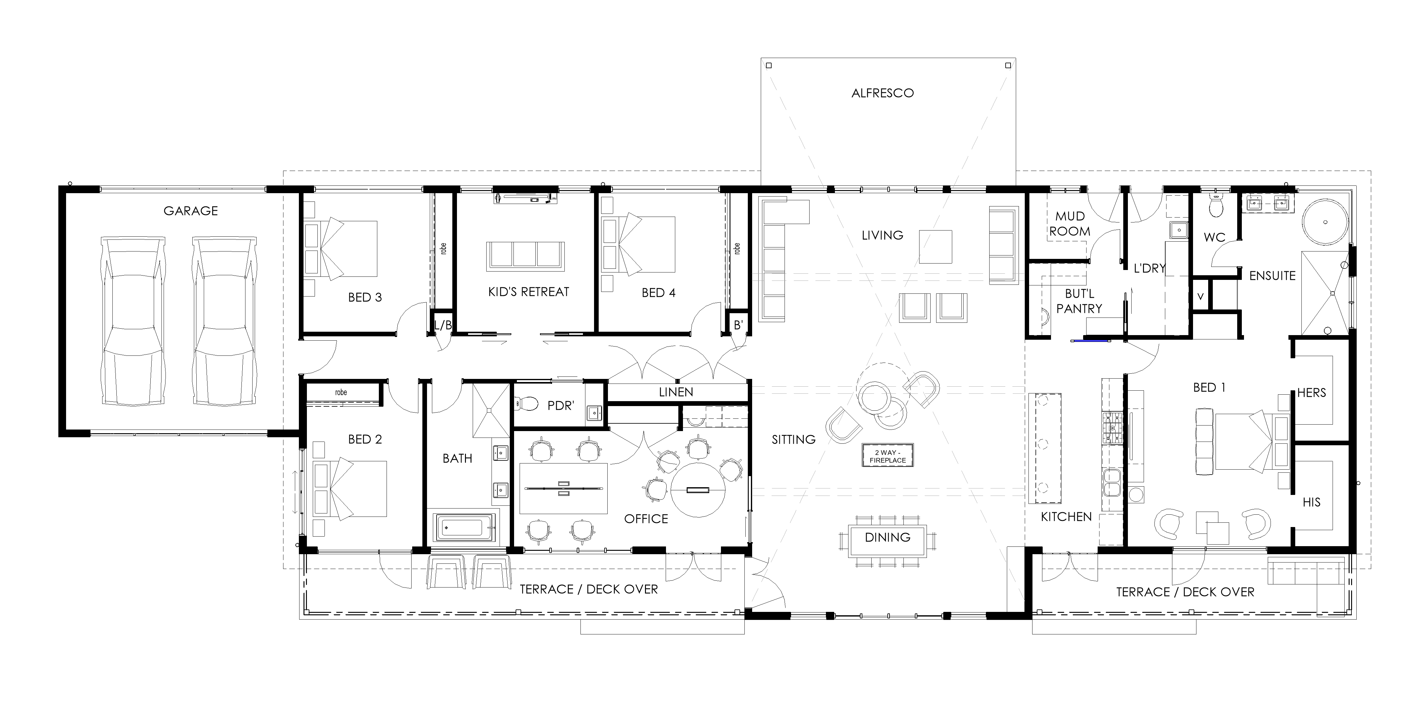
Welcome to a new level of elegance and craftsmanship. Longhorn Designs is proud to present "The Montana," a breathtaking design that captures the spirit of the American Northwest and redefines luxury living. Spanning a generous 415m², this home is a celebration of open skies and rugged beauty, designed for those who appreciate refined detail and a connection to nature.
The Montana is a masterclass in scale and craftsmanship. Its expansive layout offers a feeling of limitless freedom, while high-end finishes throughout the home speak to a level of quality and sophistication you won't find anywhere else. With four spacious bedrooms and 2.5 luxurious bathrooms, this home provides the perfect balance of private retreats and communal living. The master suite, a true sanctuary, feels like a private lodge, offering an escape with every modern comfort.
This design is engineered for the Australian lifestyle. Multiple living areas are meticulously planned for versatility, accommodating both quiet family moments and grand-scale entertaining. The Montana is a testament to our commitment to "buildability"—every detail is optimized for a transparent and efficient construction process, ensuring your builder can bring this vision to life with precision and confidence. With this home, you're not just building; you're crafting a legacy of rural sophistication.