
Longhorn Designs is thrilled to introduce "The Nebraska," a home that is an ode to bold design and expansive living. With a substantial 526m2 of meticulously planned space, this residence stands as a testament to our philosophy that a home should be as grand as the land it sits upon. The Nebraska is for the client who desires a residence that commands attention with its striking aesthetic and sophisticated charm.
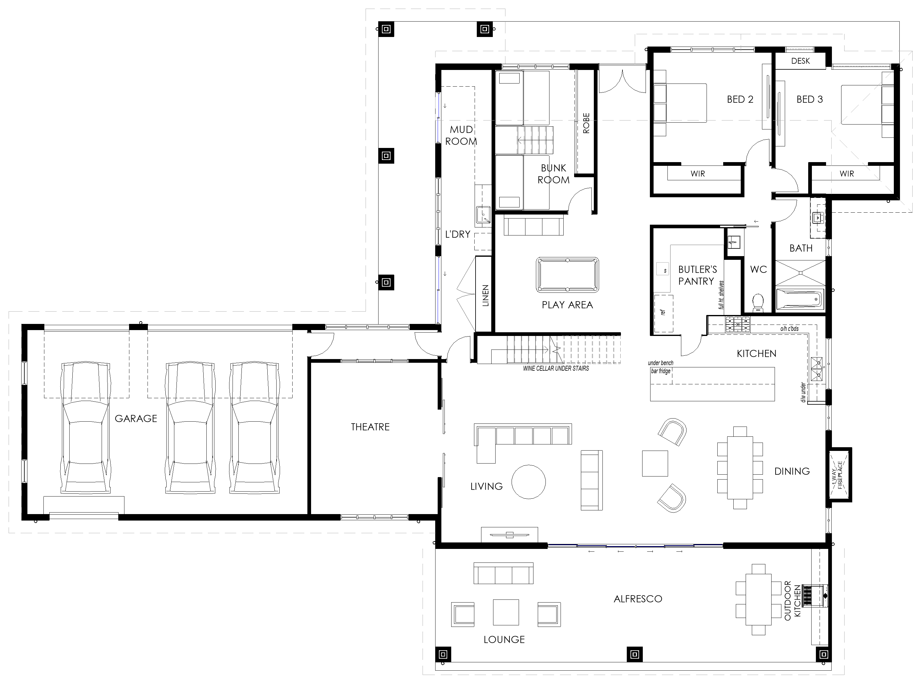
The home’s exterior is an unforgettable statement. Bold, clean architectural lines and an artful use of materials create a facade that is both powerful and elegant. This design is a modern classic, crafted for a legacy of style and endurance. But the true magic lies within. The interior unfolds into a sophisticated haven for entertaining, where soaring feature ceilings and expansive open-plan living create a sense of scale that is truly breathtaking. Every space is designed to capture and amplify natural light, creating a bright and airy atmosphere that is both inviting and inspiring.
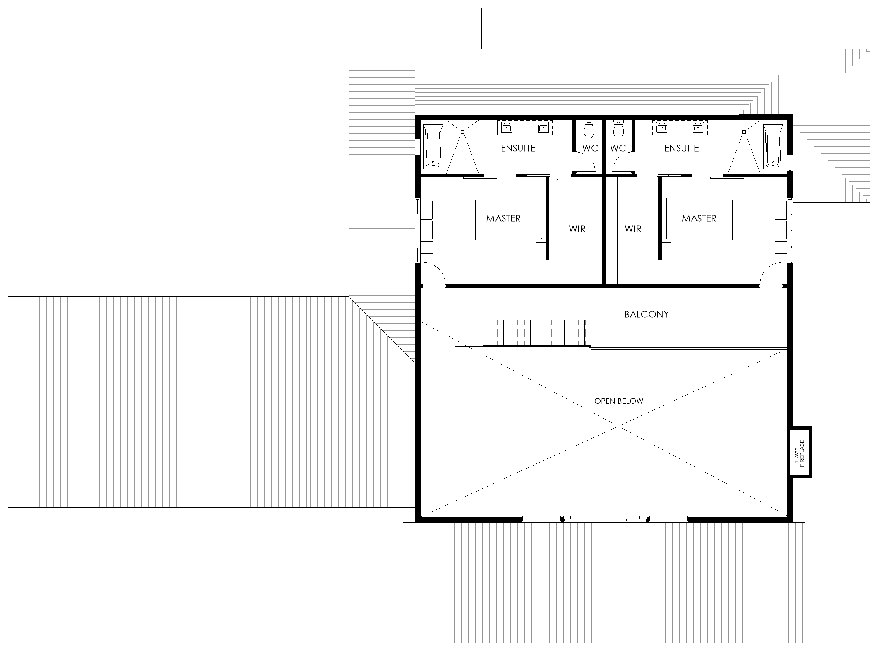
This is a home designed to facilitate a rich and full life. With five spacious bedrooms and 3.5 luxurious bathrooms, it provides a perfect balance of private sanctuary and social hub. The thoughtful layout includes multiple living areas, ensuring that the home can adapt effortlessly to a variety of family dynamics and entertaining needs. "The Nebraska" doesn't just offer space; it offers a sophisticated platform for your life to unfold, seamlessly blending indoor elegance with the outdoor charm of your surroundings.