
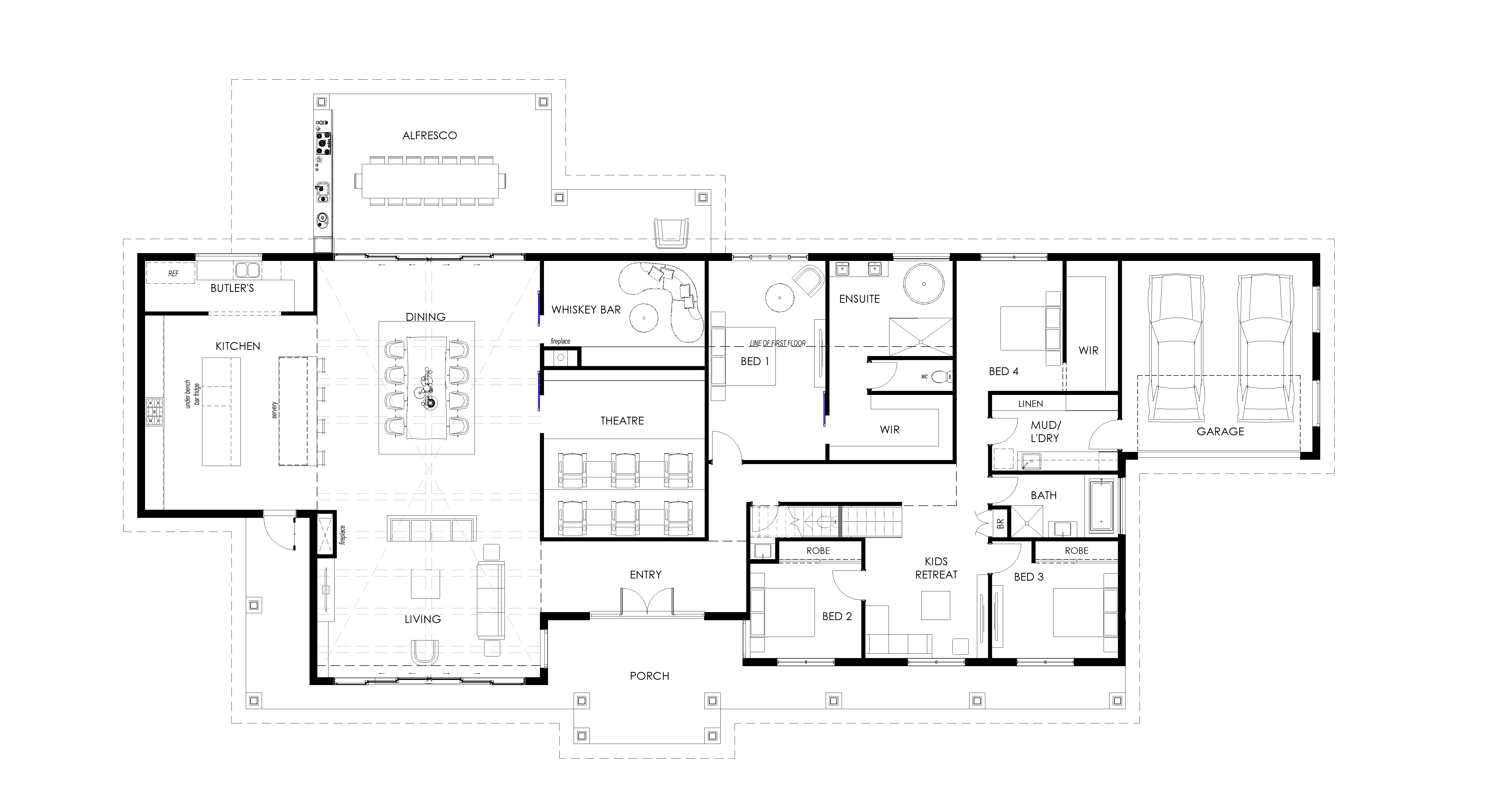
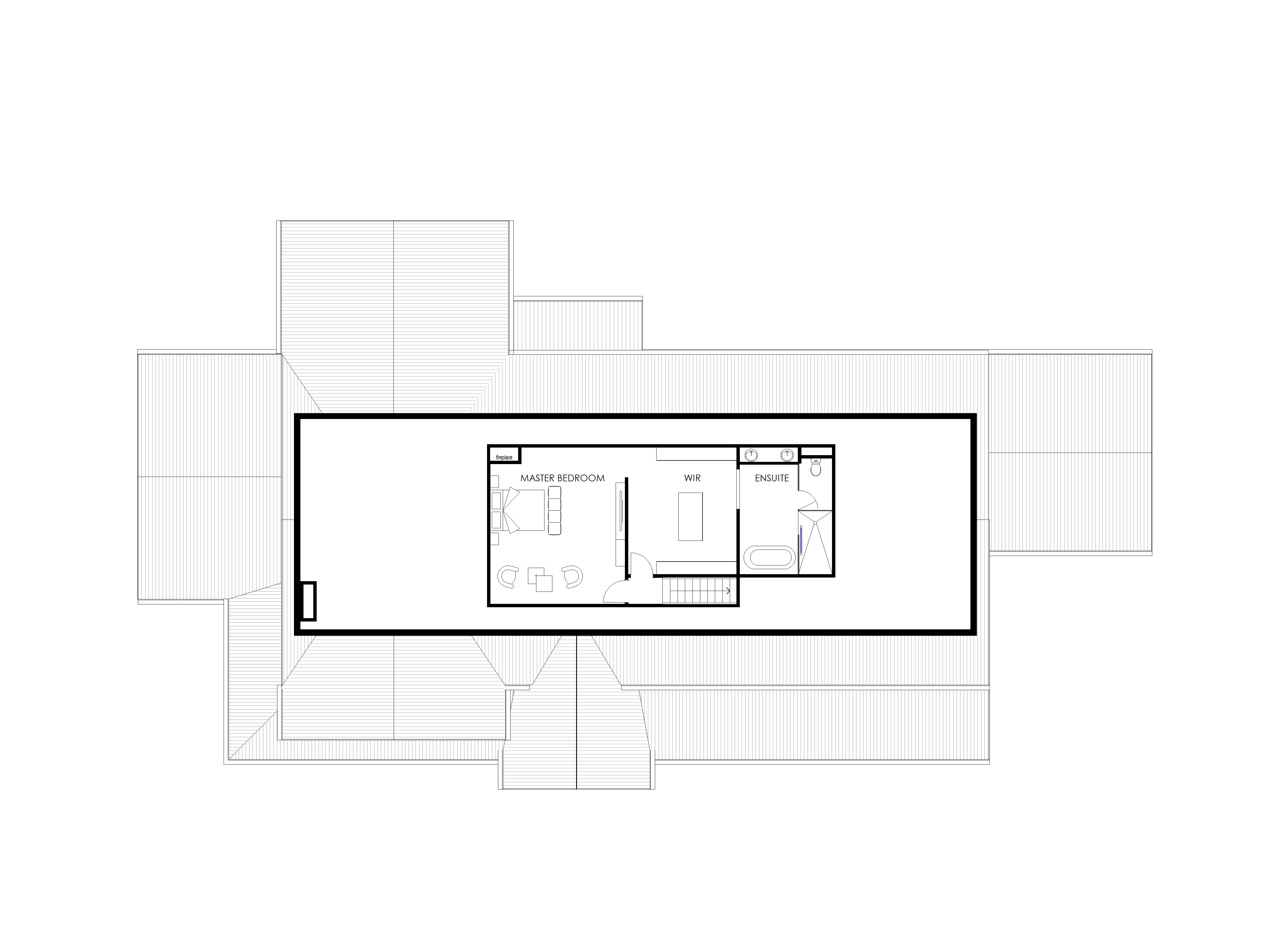
The Oklahoma is a magnificent addition to the Longhorn Collection, representing the ultimate fusion of grand scale and effortless living. A true tribute to the sprawling barndominium homes built in the American Southwest, this design is available in two considered layouts to suit different lifestyles and land sizes.The larger 590m² design spans five spacious bedrooms and three luxurious bathrooms, perfect for those seeking a truly expansive residence. This layout maximises square footage and includes a dedicated theatre and whiskey bar, making it ideal for entertainment and luxury living.For a more streamlined yet equally impressive option, The Oklahoma is also available in a 350m² design, featuring four bedrooms and three bathrooms. A unique feature of this footprint is the centralised alfresco space, thoughtfully positioned to create privacy while seamlessly connecting the interior to the outdoors.
Designed for clients who view their acreage as an extension of their home, The Oklahoma offers a sanctuary that integrates naturally with the vast Australian landscape. The core of its appeal is its ability to blur the line between interior and exterior.
Both designs feature wrap-around verandahs and open-plan, bright, and airy living spaces enhanced by high ceilings that amplify natural light and space. Every room has been meticulously planned to flow effortlessly, from the central chef’s kitchen to multiple access points leading directly onto the verandah, making entertaining a breeze.
As part of the Longhorn Collection, The Oklahoma is more than just a beautiful concept; it is a certified, engineering-friendly design that delivers smart luxury at a sharp price point. You gain the confidence of professionally optimised plans engineered for buildability and transparency, paired with an aesthetic that is both timeless and highly functional. Choose The Oklahoma and experience a home where every day is a connection to the great outdoors.